Quadrilocale in vendita

Rho, Via Castelli Fiorenza
€ 707.000
3 locali 3 locali
175 Mq 175 Mq
2 bagni 2 bagni

Quadrilocale in vendita

Rho, Via Castelli Fiorenza

Descrizione annuncio

PER LA PROSSIMA VENDITA IVA AL 4% A CARICO DEL COSTRUTTORE

Rho, nella centralissima Castelli Fiorenza nel cuore della città, comoda con tutti i servizi di prima necessità e con la stazione facilmente raggiungibile a piedi in pochissimi minuti.

Nuova realizzazione di una PALAZZINA ESCLUSIVA di sole 4 unità abitative dotata di tutti i comfort di ultima generazione e nel pieno rispetto dell'ambiente vista la classe energetica A4.

Ogni piano sarà dotato di un solo appartamento che si sviluppa su tutto il perimetro del palazzo:

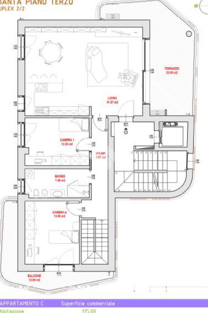
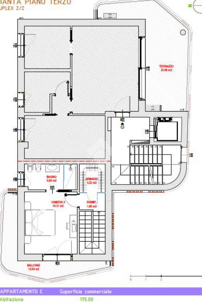
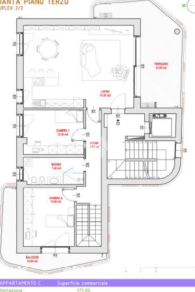
Al primo piano Tre locali di 130 mq con doppi servizi e terrazzo

Secondo e terzo piano appartamento su due livelli di quattro locali di 175 mq. doppi servizi con terrazzo

Terzo piano appartamento di Tre locali di 86 mq con terrazzo

L'ultimo piano invece sarà disposto su due livelli per una metratura commerciale di 200 mq, al quarto piano appartamento di tre locali con doppi servizi, dotato anch'esso di terrazzo esposto a Sud. Attraverso delle comode scale interne si accede al piano superiore dove troviamo la terza camera, bagno e cabina armadio e un terrazzo di 70 mq.

Completano la soluzione i box al piano terreno e due posti auto.

Mostra tutto

Nelle vicinanze

Trasporto pubblico Trasporto pubblico
Rho
Rho
370 m
Corso Europa - Largo Mazzini (Pasquè)
Corso Europa - Largo Mazzini (Pasquè)
170 m
Corso Garibaldi, 79 (Rho)
Corso Garibaldi, 79 (Rho)
210 m
Ricariche auto elettriche Ricariche auto elettriche
Rho Comune
430 m
Rho Parcheggio delle Poste
590 m
Eneldrive Volta
670 m
Distributore Q8
1,4 Km
Rho Biblioteca Comunale
1,5 Km
Scuole Scuole
Scuola Primaria Guglielmo Marconi
40 m
Istituto superiore Olivetti
480 m
Mani di forbici
540 m
I.T.I.S. Stanislao Cannizzaro
560 m
Scuole
570 m
Farmacia Farmacia
Farmacia Stazione
290 m
Farmacia Meazza
350 m
Farmacia San Michele
360 m
Farmacia San Vittore
370 m
Parafarmacia Salute
380 m
Ospedali Ospedali
Ospedale di Circolo - Rho
1,2 Km
Ospedale "Giuseppe Casati"
2,3 Km
Supermercati Supermercati
Eurospin
290 m
Il Gigante
410 m
Carrefour Market
540 m
U2 supermercato
740 m
Leader Price
1,4 Km
Negozi Negozi
Hoop
80 m
La Dispensa di Roberto
220 m
Negozi
240 m
Moda sul Corso
270 m
Satin
290 m
Bar Bar
Bar Stazione
340 m
Al santuario
790 m
Rock n Roll
880 m
Bar
1,0 Km
Bar Simplon
1,1 Km
Ristoranti Ristoranti
Ristorante Passeggeri
200 m
Pizzeria del Corso
220 m
Ristorante Al Cantuccio
260 m
Il Vicolo
280 m
Ristorante Pizzeria 69
290 m
Mostra tutto

Caratteristiche

Rif.:
61006950
Piano:
2 di 4 con ascensore (Piano medio)
Balconi:
1
Terrazzi:
1
Camere da letto:
2
Arredamento:
Assente
Mostra tutto
Prezzo Prezzo
€ 707.000
Rata mutuo Rata mutuo
€ 3.303 / mese
Proponi il tuo prezzoProponi il tuo prezzo

Classe Energetica

A4
A4
A4
A4
A4
A4
A4
A4
A4
EP globale non rinnovabile:
10.00 kW h/m² anno
EP globale rinnovabile:
10.00 kW h/m² anno
EP invernale del fabbricato:
EP estiva del fabbricato:
Anno di costruzione:
2026
Riscaldamento:
Autonomo
Tipo impianto:
Ad aria
Tipo alimentazione:
Aria

Ti interessa visionare l'immobile?

Fissa un appuntamento  Fissa un appuntamento

Richiedi informazioni

Clicca su Leggi per aprire l'informativa
* Questi campi sono obbligatori

Calcola il tuo mutuo

Semplice e senza impegno
Anticipo

( % )
Mutuo

( % )

pochi semplici passi

inserisci i tuoi dati
Questionario completato
Grazie per aver richiesto un appuntamento senza impegno con un nostro Consulente del Credito e Assicurativo.

Hai inserito correttamente tutti i dati necessari e a breve riceverai una e-mail con un link da convalidare per inviare i tuoi dati.
Affiliato
Arcadia Srl
Via Meda, 36 20017 Rho (MI)

Il nostro staff


  • Roberto Folloni
    Affiliato

  • Davide Cavicchio
    Responsabile

  • Laila Boulhilat
    Coordinatrice

  • Andrea Copello
    Collaboratore

  • Rossana Luyeki
    Collaboratrice

  • Valentina Scozzafava
    Coordinatrice
Via Meda, 36 20017 Rho (MI)
Zona: Rho - Stazione
Mostra su mappa
Orari: LUNEDI al VENERDI 9.30/12.30 e dalle 14.30/20.15 SABATO 9.30/12.30 e dalle 14.30/17
Affiliato
Arcadia Srl
Via Meda, 36 20017 Rho (MI)

2026 Tecnocasa Franchising S.p.A. - P. IVA 08365160152 - Via Monte Bianco 60/A 20089 Rozzano (MI). Ogni agenzia ha un proprio titolare ed è autonoma. Privacy policy | Policy utilizzo | Cookie policy