Trilocale in vendita

Rho, Via volta
€ 280.000
3 locali 3 locali
90 Mq 90 Mq
2 bagni 2 bagni

Trilocale in vendita

Rho, Via volta

Descrizione annuncio

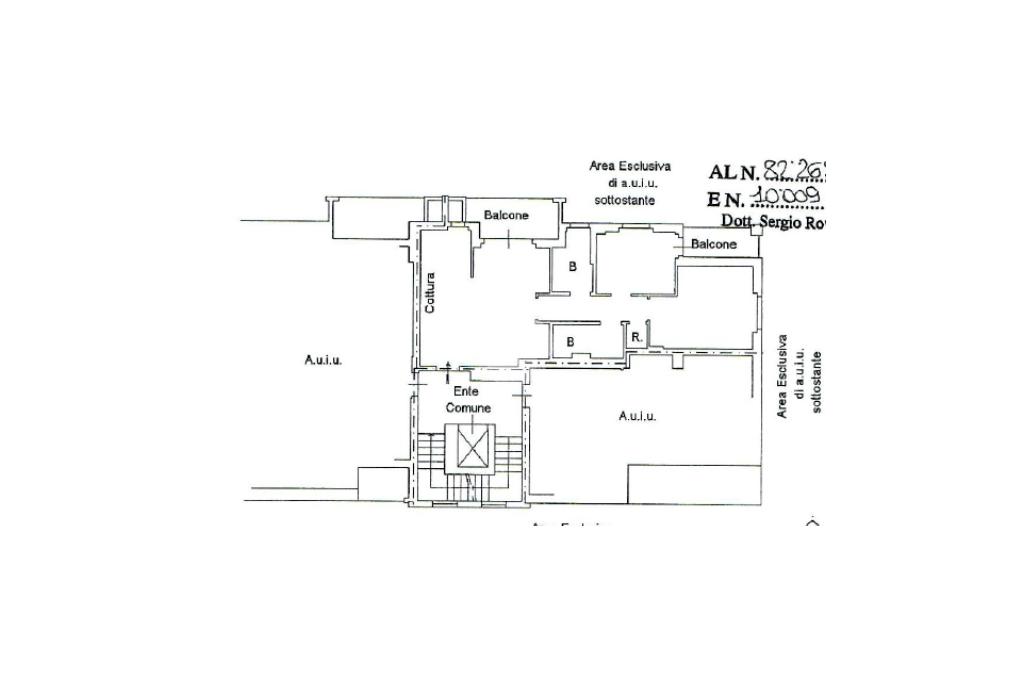
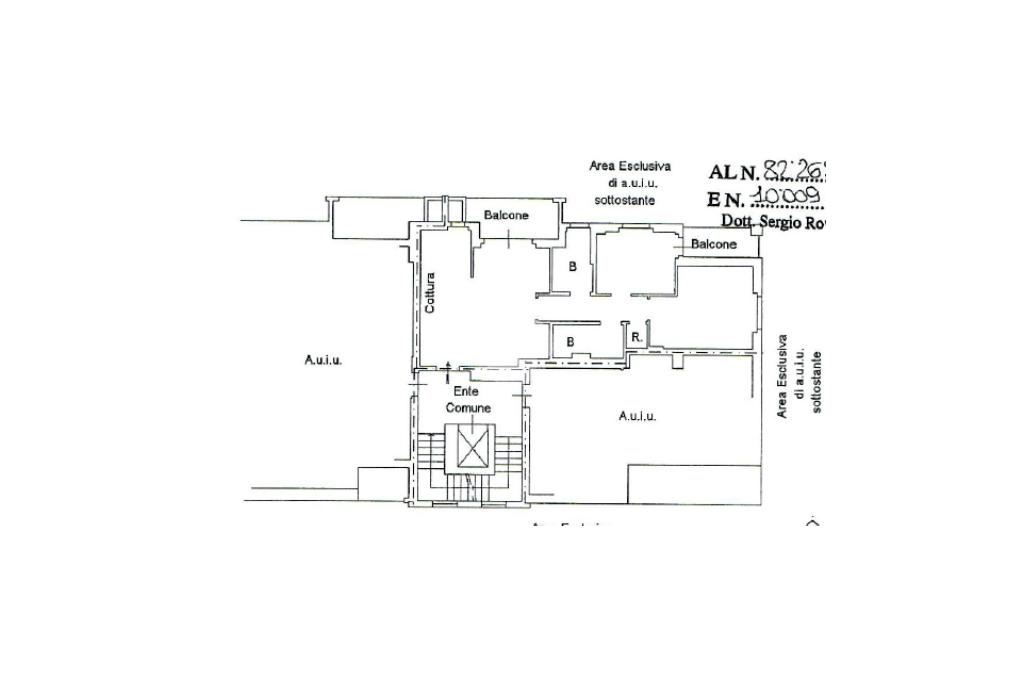
Nel comune di Rho, proponiamo un appartamento di 90 mq situato al SECONDO piano di un edificio costruito nel 2008. Questa soluzione abitativa offre tre locali ben distribuiti, ideali per chi cerca spazio e funzionalità. Veniamo accolti da una spaziosa zona giorno con cucina a vista, impreziosita da un ampia balconata, attraverso un comodo disimpegno si accede alla zona notte dove troviamo la camera da letto matrimoniale, cameretta con balcone e doppi servizi.

Completano la proprietà un box auto di generose dimensioni e una cantina.

Mostra tutto

Nelle vicinanze

Trasporto pubblico Trasporto pubblico
Rho
Rho
130 m
Trasporto pubblico
60 m
Piazza Libertà - Rho FS (Rho)
Piazza Libertà - Rho FS (Rho)
60 m
Ricariche auto elettriche Ricariche auto elettriche
Eneldrive Volta
390 m
Rho Comune
410 m
Rho Parcheggio delle Poste
760 m
Distributore Q8
1,2 Km
Rho Biblioteca Comunale
1,4 Km
Scuole Scuole
Scuola Primaria Guglielmo Marconi
270 m
Scuole
320 m
I.T.I.S. Stanislao Cannizzaro
340 m
Mani di forbici
550 m
Istituto superiore Olivetti
660 m
Farmacia Farmacia
Farmacia Stazione
50 m
Farmacia San Michele
220 m
Parafarmacia Salute
360 m
Farmacia Meazza
450 m
Farmacia San Vittore
470 m
Ospedali Ospedali
Ospedale di Circolo - Rho
1,3 Km
Ospedale "Giuseppe Casati"
2,5 Km
Supermercati Supermercati
Il Gigante
220 m
Eurospin
420 m
U2 supermercato
440 m
Carrefour Market
810 m
Leader Price
1,3 Km
Negozi Negozi
Negozi
60 m
Renna
140 m
La Dispensa di Roberto
150 m
Panificio Fermapan
230 m
Moda sul Corso
330 m
Bar Bar
Bar Stazione
110 m
Rock n Roll
570 m
Al santuario
890 m
Bar
950 m
Bar Simplon
1,2 Km
Ristoranti Ristoranti
Ristorante Pizzeria 69
40 m
L'angolo della pizza
70 m
Ristorante Passeggeri
130 m
Pizzeria del Corso
140 m
Jerry Delfino
170 m
Mostra tutto

Caratteristiche

Rif.:
61132613
Piano:
2 di 6 con ascensore (Piano basso)
Box:
1
Balconi:
1
Camere da letto:
2
Arredamento:
Assente
Mostra tutto
Prezzo Prezzo
€ 280.000
Rata mutuo Rata mutuo
€ 1.291 / mese
Spese annue Spese annue
€ 2.300
Proponi il tuo prezzoProponi il tuo prezzo

Classe Energetica

C
C
C
C
C
C
C
C
C
EP globale non rinnovabile:
52.00 kW h/m² anno
EP globale rinnovabile:
42.00 kW h/m² anno
EP invernale del fabbricato:
EP estiva del fabbricato:
Anno di costruzione:
2008
Riscaldamento:
Centralizzato
Tipo impianto:
A radiatori
Tipo alimentazione:
Metano

Ti interessa visionare l'immobile?

Fissa un appuntamento  Fissa un appuntamento

Richiedi informazioni

* Questi campi sono obbligatori

Calcola il tuo mutuo

Semplice e senza impegno
Anticipo

( % )
Mutuo

( % )

pochi semplici passi

inserisci i tuoi dati
Questionario completato
Grazie per aver richiesto un appuntamento senza impegno con un nostro Consulente del Credito e Assicurativo.

Hai inserito correttamente tutti i dati necessari e a breve riceverai una e-mail con un link da convalidare per inviare i tuoi dati.
Affiliato
Arcadia Srl
Via Meda, 36 20017 Rho (MI)

Il nostro staff


  • Roberto Folloni
    Affiliato

  • Davide Cavicchio
    Responsabile

  • Laila Boulhilat
    Coordinatrice

  • Rossana Luyeki
    Collaboratrice

  • Alessandro Masiero
    Collaboratore
Via Meda, 36 20017 Rho (MI)
Zona: Rho - Stazione
Mostra su mappa
Orari: LUNEDI al VENERDI 9.30/12.30 e dalle 14.30/20.15 SABATO 9.30/12.30 e dalle 14.30/17
Affiliato
Arcadia Srl
Via Meda, 36 20017 Rho (MI)

2025 Tecnocasa Franchising S.p.A. - P. IVA 08365160152 - Via Monte Bianco 60/A 20089 Rozzano (MI). Ogni agenzia ha un proprio titolare ed è autonoma. Privacy policy | Policy utilizzo | Cookie policy